MLS# 21173071
Listed by David Clinton • D.R. Horton, AMERICA'S Builder

Highlight
Year Built
2025
Days of On-Site Use
72 days on site
Property Type
Single Family Home
Price per Sqft
$128
Car Garage
2.0
Property Details
Key Details
Sub Type
Single Family Residence
Listing Status
Active
Purchase Type
For Sale
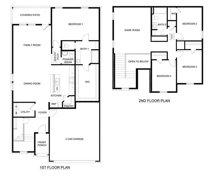
Square Footage
2,378 sqft
Subdivision
Sweetwater
MLS Listing ID
21173071
Bedrooms
4
Full Baths
2
Half Baths
1
HOA Fees
$425/ann
HOA Y/N
Mandatory
Lot Size
4,704 Sqft
Acres
0.108
Property Sub-Type
Single Family Residence
Location
State
TX
County
Grayson
Direction
From US-75N, take Texoma Parkway Exit, go right. Go under HWY 82. Take a right on E. Hilltop Dr and this will take you into the community.
Rooms
Dining Room
1
Interior
Interior Features
Cable TV Available, Decorative Lighting, Flat Screen Wiring, Smart Home System
Appliance
Dishwasher, Electric Range, Microwave
Exterior
Utilities Available
City Sewer, City Water
Total Parking Spaces
2
Garage
Yes
Building
Story
Two
Level or Stories
Two
Schools
Elementary Schools
Percy W Neblett
Middle Schools
Sherman
High Schools
Sherman
School District
Sherman Isd
Neighborhood & School Information



